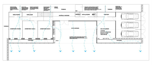
BIOCLIMATIC RECICLATED SINGLE FAMILY HOUSE. Madrid

Madrid, Spain. Bioclimatic house made by reciclated containers.